City staff to seek site-surety funds for inactive Connect 25 site after bank declines renewal; developer says re-start plan underway
Get AI-powered insights, summaries, and transcripts
SubscribeSummary
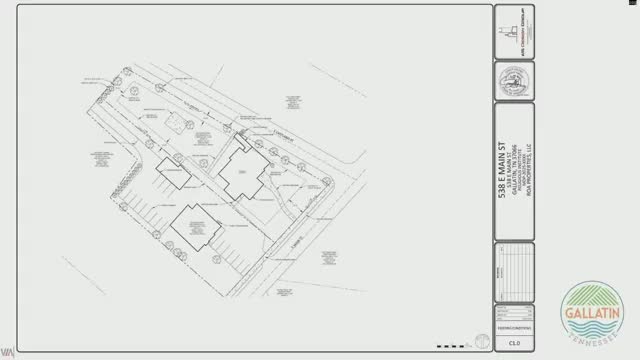
City engineering staff told the Municipal Planning Commission they will seek to call a site-surety letter of credit for the Connect 25 parcel behind Savannah Marketplace because the bank that issued the surety will not renew it and the land-disturbance permit has lapsed.
City engineering staff asked the planning commission at the work session to authorize a demand on the site-surety (letter of credit) for the Connect 25 site (property behind Savannah Marketplace) because the project is inactive, the land-disturbance permit has lapsed, the site is not stabilized and the issuing bank has notified the city it will not renew the surety after it expires on June 5.
Why it matters: An inactive disturbed site can pose erosion and drainage risks to neighboring properties. The citymay call the letter of credit to pay contractors to stabilize the site if the permittee does not act.
What happened and what the developer said
- Engineering staff said the project has been inactive and that, per the bank's letter, the bank will not renew the surety. Staff said the city's standard practice is to advertise and contract for stabilization work and draw on the surety if the owner does not correct the violations.
- Gary Hill, president of Calamar Construction North America (developer), told the commission the project suffered a sequence of setbacks: a requested plan change to accommodate an adjacent owner, a large rain event that required a costly additional stormwater bypass, and the withdrawal of a principal equity partner last fall. Hill said Calamar is negotiating a new financing plan and expects to present contracts and a stabilization/restart plan to staff near the next meeting.
Process and timeline
- Staff said a call of the letter of credit would be sent to the bank by certified mail along with a resolution; funds collected would be deposited in the city's surety account, and staff would advertise to contract removal or stabilization work. If funds remain after completion, the balance would be returned to the permittee.
- The commission and developer discussed whether calling the surety would stop the project's momentum; staff said a new site surety would be required for future building permits.
Next steps
Engineering staff requested authority to proceed with the demand process if the bank refuses renewal; the developer said he expected to present a detailed plan and contracts to staff before the next meeting.
