Planning board approves conversion to three units at Whitehall with parking condition
Get AI-powered insights, summaries, and transcripts
SubscribeSummary
The board approved Jonathan Rogers’ application to convert a property on Whitehall to a three-unit dwelling, granting a small waiver and requiring the applicant to show parking spaces on final recorded plans before a certificate of occupancy.
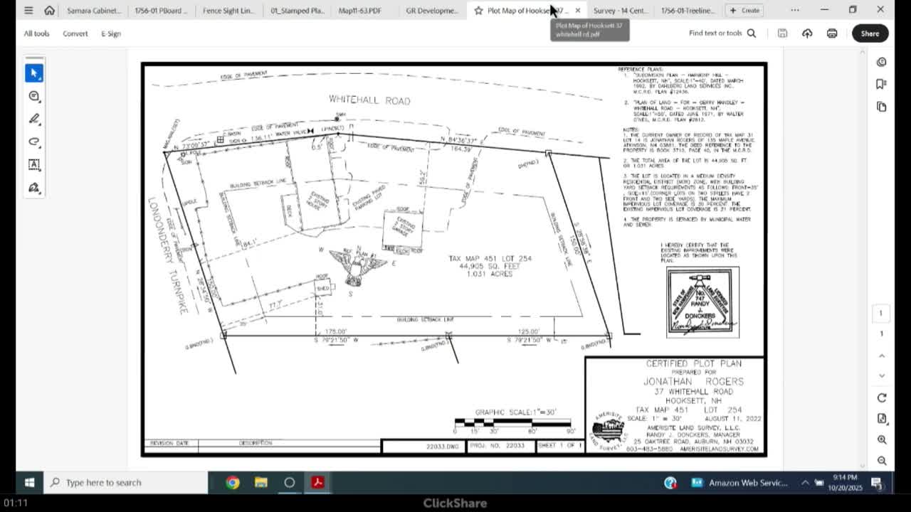
Hooksett’s Planning Board approved a site plan on Monday allowing Jonathan Rogers to convert a Whitehall property (Map 31, Lot 1437) to three dwelling units, subject to a recording condition that the applicant show the property’s parking layout on the final plan.
Why it matters: The conversion increases housing units in an existing residential structure but raised a technical issue the board asked the applicant to resolve: the recorded plan must show parking stall locations and the distance to the front property line to verify compliance with setback and parking rules.
What the board decided: The board granted the applicant a waiver from a portion of the site-plan checklist (technical scale/detail level) to allow the submission as presented. It then adopted the findings of fact and approved the plan with conditions including that the final recorded plan include the precise parking layout and that the applicant meet standard pre-occupancy technical items and impact-fee obligations.
Speakers and facts: The applicant represented himself. Board members emphasized procedure and the need to record the parking to avoid ambiguity about proximity to property lines. Planning staff confirmed the town’s parking and setback requirements and that the house’s pre-1985 status allows a three-unit conversion under the zoning rules.
Ending: The applicant must add the parking stall markings and dimensions to the recorded plan, secure the town’s standard technical signoffs and pay assessed fees before receiving a certificate of occupancy.
